
Progettare parete attrezzata è molto più che scegliere mobili che si adattano agli spazi. È un processo che unisce creatività, funzionalità e personalizzazione, dove ogni progetto è unico perché riflette le esigenze, i desideri e le visioni di chi vivrà quegli spazi. In un mondo in cui spesso l’arredamento sembra troppo standardizzato, la progettazione arredo casa può diventare un’esperienza di co-creazione, dove designer e committenti lavorano insieme per trasformare un’idea in realtà.

Arredare Casa: Un Percorso Condiviso
L’esperienza di Elena e Simone è un esempio perfetto di come la coprogettazione possa cambiare radicalmente il concetto di arredare casa. Dopo anni passati a cercare l’arredo giusto per il loro soggiorno, senza trovare nulla che li soddisfacesse pienamente, hanno scoperto il nostro laboratorio di design. Da subito, ciò che ha colpito Elena è stata la possibilità di partecipare attivamente al progetto. Non solo acquistare mobili predefiniti, ma contribuire con idee, suggerimenti e dettagli che avrebbero reso ogni pezzo unico e perfettamente adatto al loro stile di vita.

Dopo una prima email e una telefonata, Elena e Simone ci hanno visitato in laboratorio per vedere dal vivo i mobili che avevano adocchiato sul nostro sito. Da lì, è iniziato un processo di dialogo, progettazione e discussione che ha dato vita a un percorso di coprogettazione, dove il cliente non è solo un destinatario passivo, ma diventa parte integrante del progetto arredo interni.

Progettare Parete Attrezzata e Altri Elementi Personalizzati
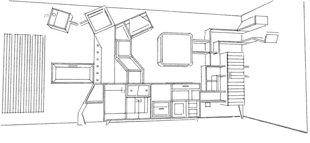
Uno degli elementi principali richiesti da Elena e Simone era una parete attrezzata per il soggiorno. Avevano bisogno di un mobile funzionale che potesse ospitare l’impianto audio, ma anche altri oggetti, libri e decorazioni. La sfida non era solo progettare la parete attrezzata che rispondesse alle loro esigenze estetiche, ma anche integrare tutte le funzioni tecniche richieste da Simone, che aveva particolari accorgimenti da adottare per il sistema audio e l’allarme.

Inoltre, il progetto si è allargato man mano che le idee si sviluppavano: alla richiesta iniziale di una *parete attrezzata, si è aggiunta una *libreria divisoria bifacciale che doveva separare l’ingresso dal soggiorno senza appesantire troppo l’ambiente. Questa libreria, completamente personalizzata, fungeva anche da *libreria divisoria ingresso, mantenendo un certo grado di trasparenza e leggerezza visiva. La versatilità di una *libreria divisoria bifacciale permette di sfruttare lo spazio su entrambi i lati, rendendola ideale per chi desidera dividere un ambiente senza creare barriere troppo rigide.

Basi per Tavolo in Vetro: Il Dettaglio che Fa la Differenza
Un altro punto chiave del progetto arredi di Elena e Simone era la creazione di una base per un tavolo. Avevano già un bellissimo piano in vetro cristallo e cercavano una base per tavolo in vetro che fosse all’altezza di quel pezzo così importante. Abbiamo progettato una base in legno che non solo garantisse stabilità, ma che si integrasse perfettamente con il resto degli arredi, mantenendo un equilibrio tra il moderno e il rustico.

L’uso di basi per tavolo in vetro personalizzate rappresenta un esempio di come anche un dettaglio apparentemente semplice possa fare la differenza in un progetto di arredamento su misura. La base diventa così un elemento di design che valorizza il piano del tavolo, trasformandolo in un pezzo centrale dell’arredamento.

Libreria Divisoria: Estetica e Funzionalità in Unico Progetto
La libreria divisoria progettata per Elena e Simone è stata pensata non solo per dividere gli spazi, ma per aggiungere funzionalità ed estetica a un ambiente aperto. Questa libreria divisoria ingresso aveva una struttura leggera che permetteva alla luce di filtrare, creando un ambiente arioso e luminoso. Grazie alla sua struttura bifacciale, la libreria poteva essere utilizzata sia dal lato dell’ingresso che dal soggiorno, offrendo spazio per libri, oggetti decorativi e anche per integrare piccoli vani contenitori nascosti.


La progettazione di una libreria divisoria bifacciale richiede particolare attenzione al bilanciamento tra estetica e praticità. In questo caso, il nostro obiettivo era creare un elemento che funzionasse come parete divisoria, ma senza la pesantezza di un muro. Grazie a questo approccio, l’ingresso e il soggiorno risultavano separati, ma collegati visivamente.

La Coprogettazione: Un Processo in Evoluzione
Durante la fase di coprogettazione, uno degli aspetti più interessanti è stato il continuo scambio di idee e la discussione su ogni dettaglio del progetto arredo interni. La nostra prima bozza in 3D ha entusiasmato Elena e Simone, ma ha anche sollevato nuove idee e modifiche da parte loro. Elena, per esempio, non era convinta al 100% della palette di colori inizialmente proposta, e insieme abbiamo lavorato per trovare una soluzione cromatica che la soddisfacesse completamente.


Simone, invece, aveva precise esigenze tecniche per l’integrazione dei cavi dell’impianto audio e dell’allarme. Questo ha comportato ulteriori aggiustamenti nel progetto arredi, ma alla fine, ogni elemento si è incastrato perfettamente grazie alla continua collaborazione.

La Progettazione degli Spazi e degli Arredamenti: Un Percorso Unico
Il processo di progettazione degli spazi e degli arredamenti non è mai lineare o identico per tutti. Ogni cliente porta con sé un mondo di ispirazioni e visioni, e il nostro compito è trasformare quelle idee in progetti concreti. In questo caso, il risultato finale ha superato le aspettative di Elena e Simone, creando un arredo che non solo rifletteva il loro stile, ma anche le loro esigenze funzionali e pratiche.

Progettare l’arredo di casa è un viaggio che unisce tecnica, estetica e personalizzazione. Che si tratti di una *parete attrezzata, di una *base per tavolo in vetro o di una libreria divisoria, ogni pezzo nasce dall’incontro tra il cliente e il designer, in un dialogo continuo che porta alla realizzazione di un arredamento su misura, unico e irripetibile.


Conclusione: Un Lavoro di Squadra
La coprogettazione non riguarda solo l’aspetto estetico, ma anche l’efficienza degli spazi e la loro funzionalità. Ogni progetto, come quello di Elena e Simone, rappresenta un’esperienza condivisa tra il committente e il progettista, dove entrambi imparano e crescono. Nel nostro laboratorio, l’arredamento non è mai solo un oggetto da comprare, ma un viaggio creativo che trasforma un’idea iniziale in qualcosa di tangibile e straordinario.

La progettazione arredo casa è una sfida che abbraccia non solo il design, ma anche il modo in cui si vive lo spazio. Lasciati ispirare dalla possibilità di creare la tua casa ideale, partendo da una semplice visione e arrivando a un progetto arredi su misura, realizzato con cura e attenzione ai dettagli.
